Vybrané Reference

Sledujte nás i na Facebooku  Aktuálně probíhající stavby najdete na našem Facebooku.

  • 0.jpg

    Rekonstrukce balkonů bytového domu, Praha 5 - Zbraslav

    2019

  • 0.jpg

    Novostavba rodinného domu, Svojetice

    2019

  • 0.jpg

    Výstavba multifunkčního hříště, Praha 9 - Klánovice

    2019

  • 0.jpg

    BD, Mníšek pod Brdy

    2018

  • 0.jpg

    Zateplení BD, Praha 5 - Stodůlky

    2018

  • 0.jpg

    Zateplení BD, Kynšperk nad Ohří

    2018

  • 0.jpg

    Zateplení a zvětšení balkonů BD, Praha 4

    2018

  • 0.jpg

    Zateplení a výměna balkonu BD, Dobříš

    2018

  • 0.jpg

    Rekonstrukce svařovny a kovárny v SOU, Praha 5 - Radotín

    2018

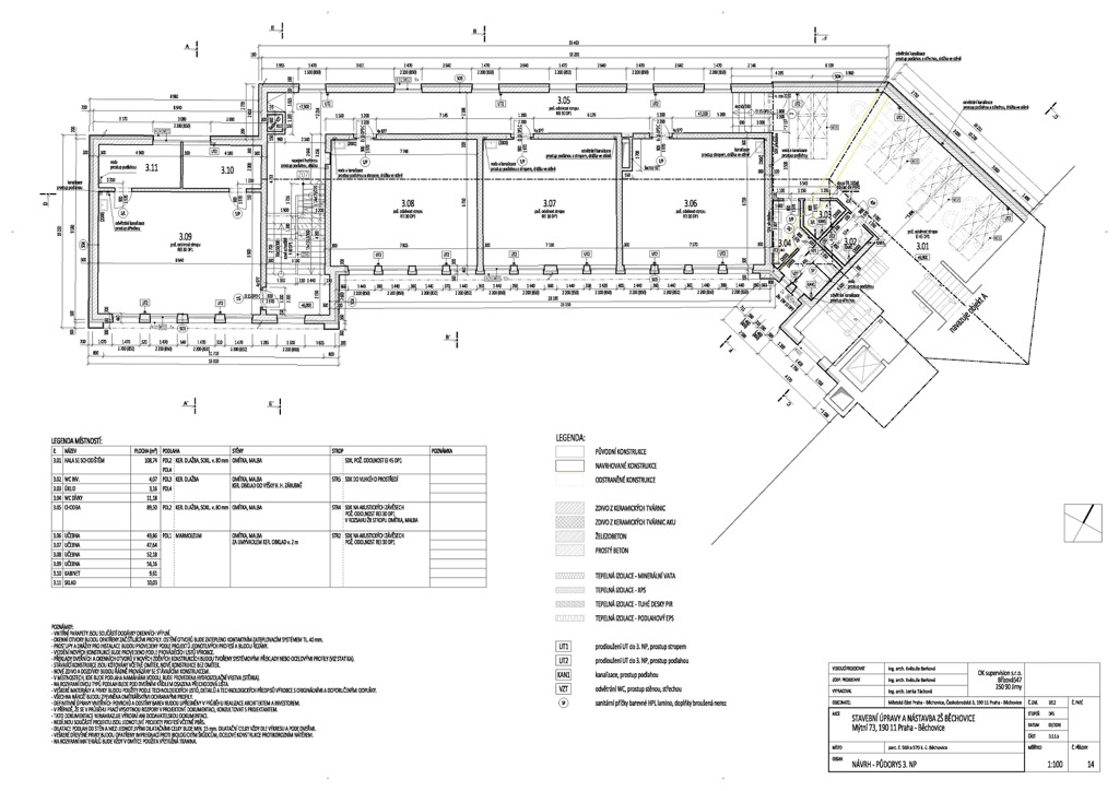
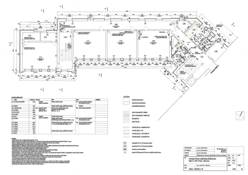
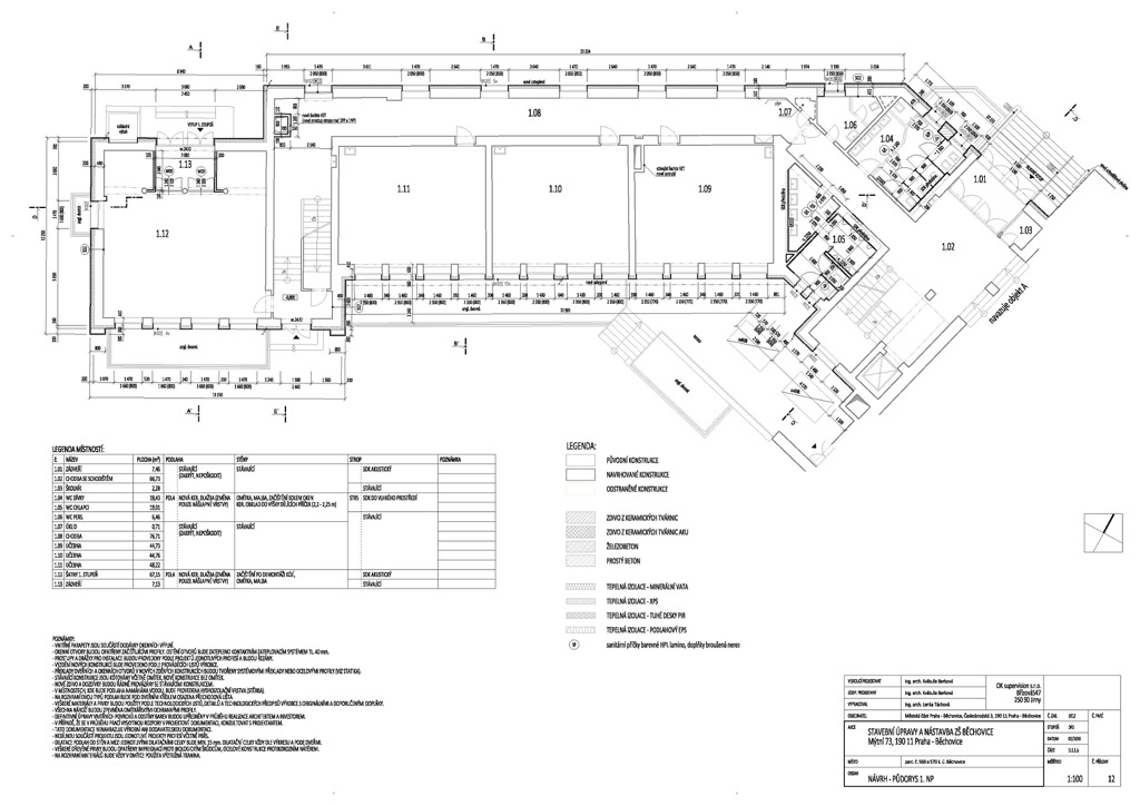
  • 1812_DPS_12_navrh_1NP-page-001.jpg

    Projektová dokumentace základní školy, Praha 9 - Běchovice

    02/2020

1 2 3 4 5 6 7 8 9 10 11 ...