Domů
O nás
Činnost
Reference
Certifikace
Ceník
Kontakt
608 917 575
info (a) dozor-stavby tecka cz
Úvod
\
Reference
\
Projekční činnost
\
Stavby občanské vybavenosti
Vybrané Reference
Aktuálně probíhající stavby najdete na našem
Facebooku
.
Projekční činnost
Dozory staveb
Posudky
Řízení staveb
Rodinné domy
Bytová výstavba
Stavby občanské vybavenosti
PD rekonstrukce střešního pláště knihovny, Čelákovice
2021
PD rekonstrukce požární zbrojnice HZS, Čelákovice
2021
Projektová dokumentace základní školy, Praha 9 - Běchovice
02/2020
Studie základní školy, Praha 9 - Běchovice
2020
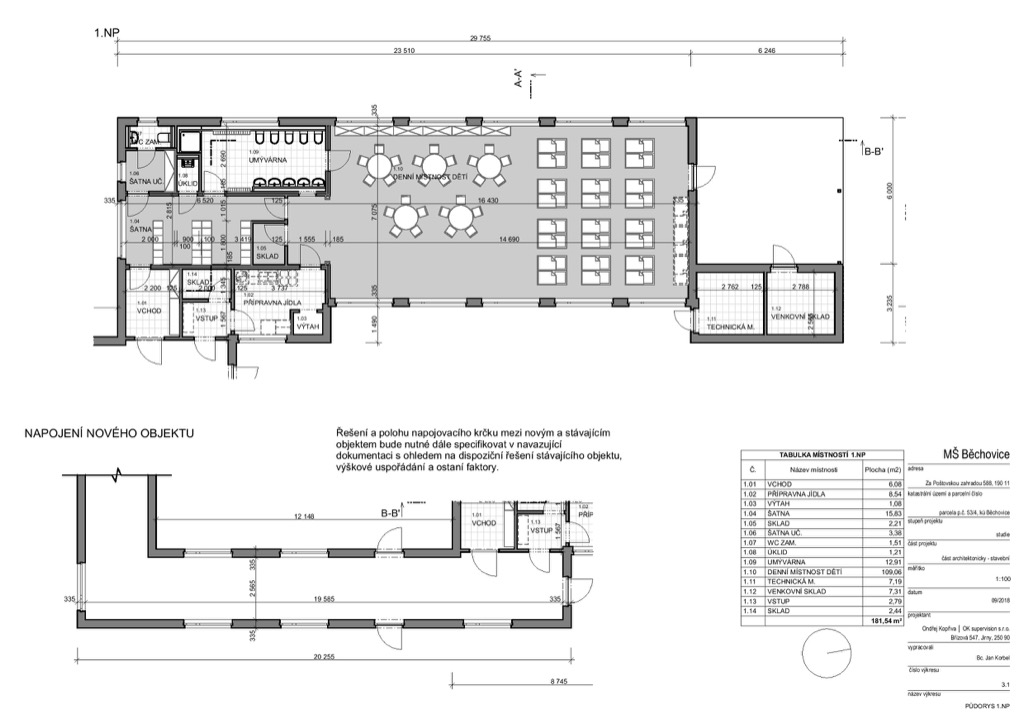
Studie školky, Praha 9 - Běchovice
09/2018